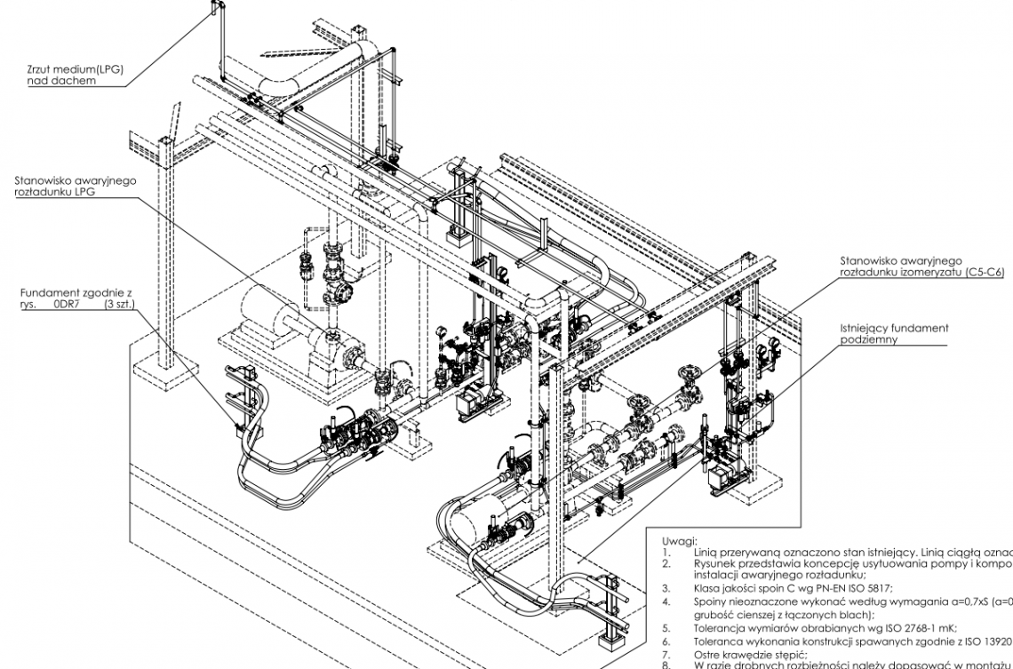
Wykonaliśmy projekt instalacji umożliwiający hermetyzację procesu rozłączania złącza nalewczego LPG dla cystern kolejowych i drogowych. Zaprojektowane rozwiązanie umożliwia opróżnianie przestrzeni międzyzaworowej za pomocą pompy próżniowej i odprowadzenie resztek do sieci zrzutowej. Nowe wykonanie zapewnia bezpieczną pracę i brak uwalniania znacznych ilości wybuchowego gazu LPG do atmosfery, który w trakcie przełączania wagonów wydostawał się na zewnątrz instalacji tworząc groźne rozlewisko.
Niniejsza realizacja wymagała wymyślenia koncepcji działania i dalszych prac z zakresu B+R. Nasz zespół projektowy wykonał szereg obliczeń, opracował schemat P&ID oraz dobrał do tego zespół urządzeń umożliwiający poprawne działanie. Po wykonaniu szczegółowej inwentaryzacji, odtworzyliśmy komputerowo model 3D istniejącej zabudowy. Na podstawie tego modelu zaprojektowaliśmy nową instalację i wykonaliśmy szczegółową dokumentację projektową.
Instalacja została już wybudowana, został przeprowadzony szereg prób i testów co umożliwiło optymalizację procesu opróżniania. Otrzymaliśmy informację zwrotną od użytkownika, że całość działa poprawnie i znacząco został poprawiony komfort oraz bezpieczeństwo pracy.



